Bühne frei für Ihre Ideen! Gewerbeflächen im Zentrum von Steinen
Attraktive Gewerbefläche im Zentrum von Steinen – vielseitig nutzbar und repräsentativ!
Diese außergewöhnliche Gewerbeimmobilie befindet sich in zentraler, frequentierter Lage von Steinen und überzeugt durch vielseitige Nutzungsmöglichkeiten sowie ihren repräsentativen Charakter. Ob Büro, Praxis, Atelier, Fotostudio, Showroom, Kunst- bzw. Kreativraum oder ähnliche Konzepte – die Struktur ermöglicht sehr flexible Nutzungsvarianten.
Ausgezeichnete Sichtbarkeit & Laufkundschaft
Die Immobilie liegt direkt neben einer Apotheke, einer Physiotherapiepraxis, der Post und einem großen öffentlichen Parkplatz. Durch den täglichen Passantenstrom besteht eine hervorragende Sichtbarkeit – ideal für Anbieter, die von Laufkundschaft profitieren möchten.
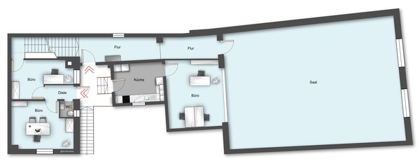
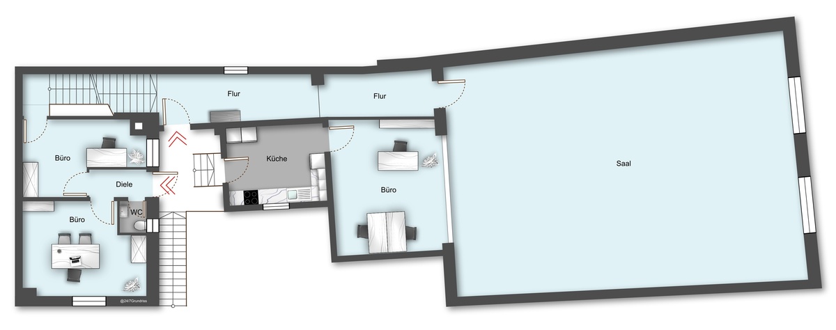
Großzügiges Raumangebot über zwei Ebenen
Im Erdgeschoss befinden sich:
zwei getrennte Sanitäranlagen
Garderobenbereich
Empfangstheke für Anmeldung oder Wartezone
Über eine Treppe gelangt man in das Obergeschoss mit eindrucksvoller Raumwirkung.
Repräsentativer Saal mit Bühne
Das Obergeschoss bildet das Herzstück der Immobilie:
ein großer, heller Saal mit:
hochwertigem Parkett
dekorativen Wand- und Deckenelementen
großzügiger Raumhöhe
integrierter Bühne (z. B. für Präsentationen, Vorträge oder als Arbeitsbereich)
Im rückwärtigen Bereich steht ein zusätzlicher Raum mit Küchenanschlüssen zur Verfügung (Nutzung als Aufenthaltsraum oder Küche möglich).
Optional kann eine angrenzende Bürofläche separat angemietet werden.
Flexible Anmietung ab ca. 150 m²
Besonders geeignet für:
Showroom, Ausstellung, Atelier, Büro, Praxis, Fotografie, Präsentationszwecke, Schulungen, Workshops, Coaching
Hinweis zur Nutzung: Aufgrund der angrenzenden Hotelnutzung sind lärmintensive Gewerbe keine Option.
Diese außergewöhnliche Gewerbeimmobilie befindet sich in zentraler, frequentierter Lage von Steinen und überzeugt durch vielseitige Nutzungsmöglichkeiten sowie ihren repräsentativen Charakter. Ob Büro, Praxis, Atelier, Fotostudio, Showroom, Kunst- bzw. Kreativraum oder ähnliche Konzepte – die Struktur ermöglicht sehr flexible Nutzungsvarianten.
Ausgezeichnete Sichtbarkeit & Laufkundschaft
Die Immobilie liegt direkt neben einer Apotheke, einer Physiotherapiepraxis, der Post und einem großen öffentlichen Parkplatz. Durch den täglichen Passantenstrom besteht eine hervorragende Sichtbarkeit – ideal für Anbieter, die von Laufkundschaft profitieren möchten.
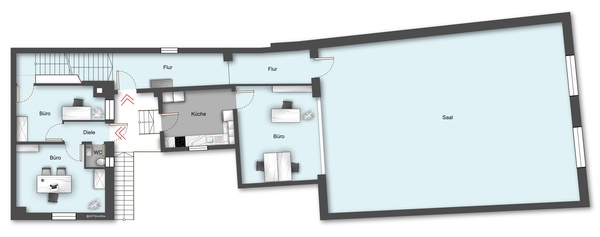
Großzügiges Raumangebot über zwei Ebenen
Im Erdgeschoss befinden sich:
zwei getrennte Sanitäranlagen
Garderobenbereich
Empfangstheke für Anmeldung oder Wartezone
Über eine Treppe gelangt man in das Obergeschoss mit eindrucksvoller Raumwirkung.
Repräsentativer Saal mit Bühne
Das Obergeschoss bildet das Herzstück der Immobilie:
ein großer, heller Saal mit:
hochwertigem Parkett
dekorativen Wand- und Deckenelementen
großzügiger Raumhöhe
integrierter Bühne (z. B. für Präsentationen, Vorträge oder als Arbeitsbereich)
Im rückwärtigen Bereich steht ein zusätzlicher Raum mit Küchenanschlüssen zur Verfügung (Nutzung als Aufenthaltsraum oder Küche möglich).
Optional kann eine angrenzende Bürofläche separat angemietet werden.
Flexible Anmietung ab ca. 150 m²
Besonders geeignet für:
Showroom, Ausstellung, Atelier, Büro, Praxis, Fotografie, Präsentationszwecke, Schulungen, Workshops, Coaching
Hinweis zur Nutzung: Aufgrund der angrenzenden Hotelnutzung sind lärmintensive Gewerbe keine Option.
| Miete pro qm / Monat | 8,50 EUR |
| Nebenkosten | 300,00 EUR |
| Kaution | 3 Monatsmieten kalt |
| Provision | provisionsfrei |
Objekt Informationen
| Nr. | 25SPK |
|---|---|
| Typ | Gewerbe |
| Gewerbefläche | 228 qm |
| Anzahl Zimmer | 10 |
| Befeuerung | Fernwärme |
