Exklusives Wohnerlebnis: Einfamilienhaus mit Einliegerwohnung und beeindruckendem Wintergarten mit Pool!
Exklusive Villa mit einzigartigem Charme in Efringen-Kirchen OT
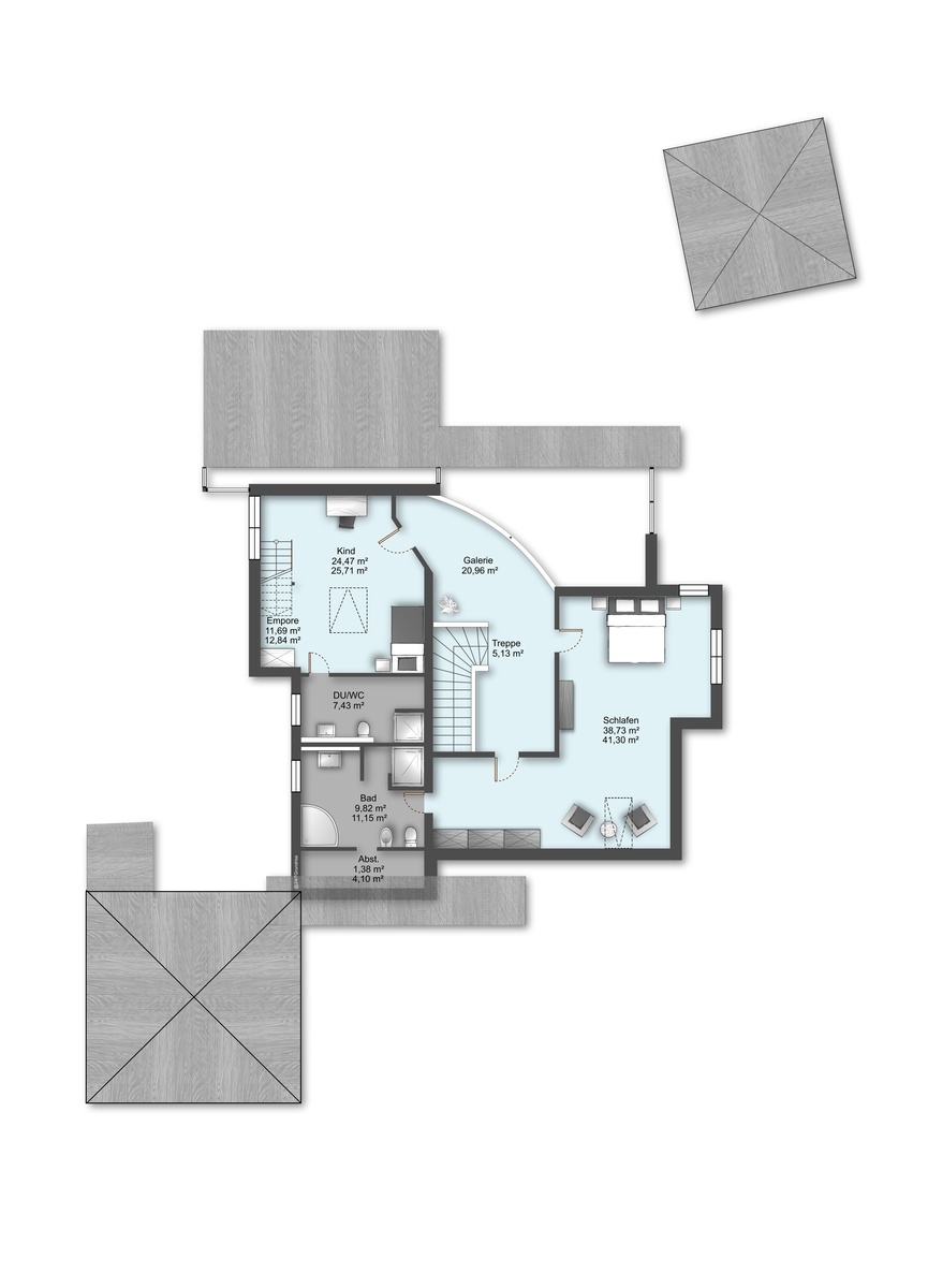
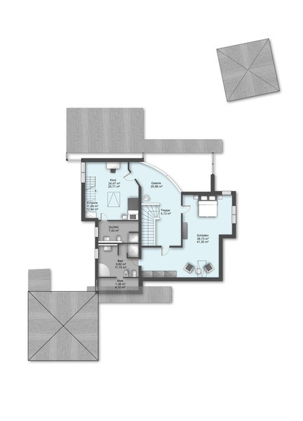
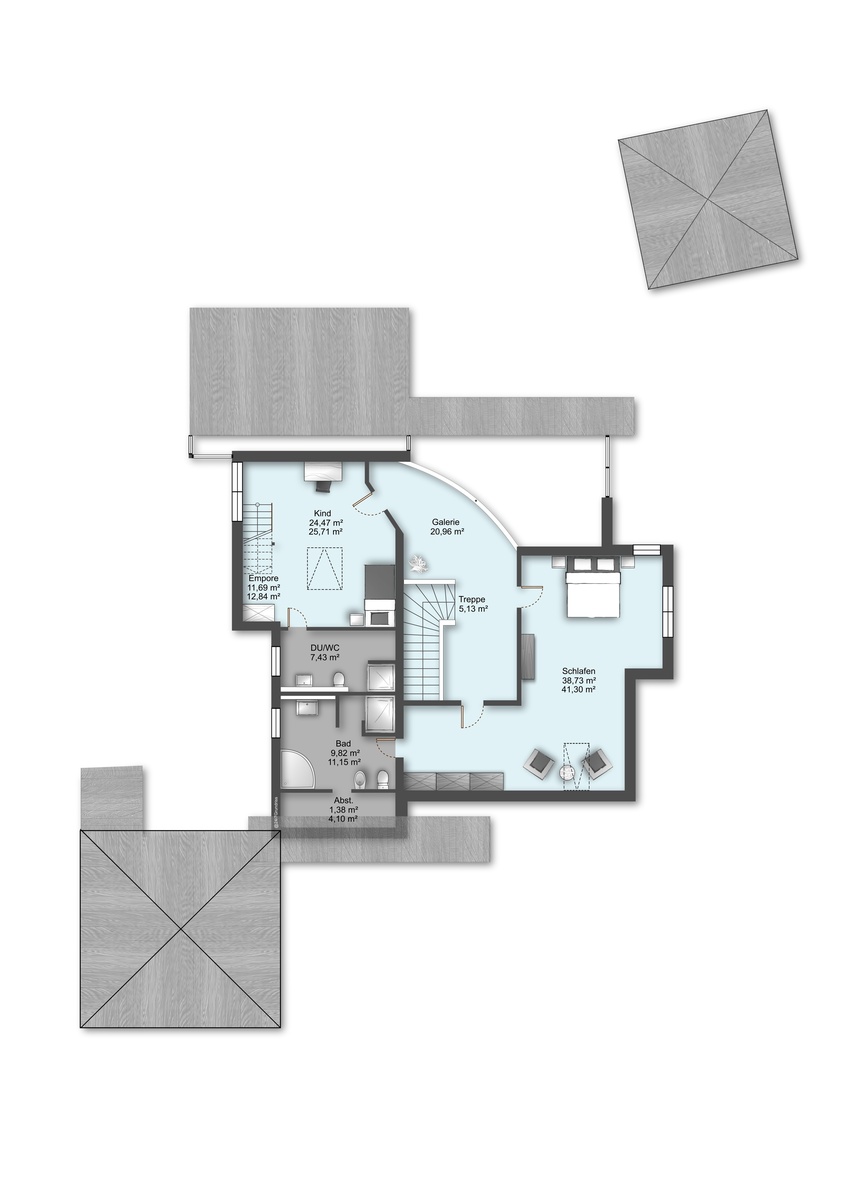
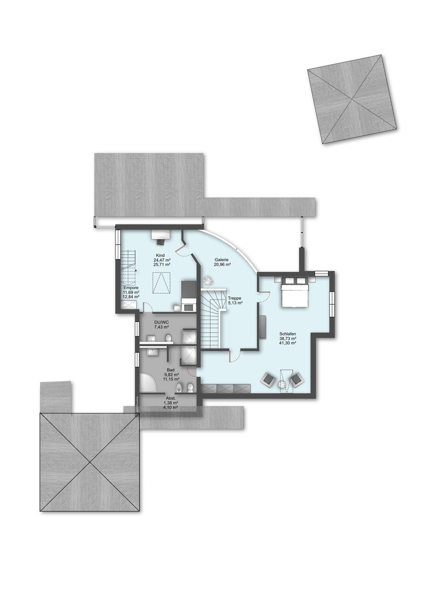
Diese außergewöhnliche Villa aus dem Jahr 2003 besticht durch ihre hochwertige Ausstattung und architektonische Raffinesse. Kein alltägliches Haus – sondern ein Wohntraum mit lichtdurchfluteten, großzügigen Räumen, offener Gestaltung und einer Galerie, die den Blick in die Ferne über Wiesen und Obstbäume freigibt.
Der Bauherr hat hier mit viel Stilbewusstsein, Sinn für Ästhetik und einem praktischen Gespür ein Zuhause geschaffen, das keine Wünsche offenlässt. Ein Highlight ist der Wintergarten mit integriertem Pool und Gegenschwimmanlage – perfekt für Wellness und Entspannung. Ergänzt wird das Wohlfühlambiente durch eine Sauna, die erholsame Auszeiten ermöglicht. Im großzügigen Garten lädt ein moderner Pavillon zu gemütlichen Stunden im Freien ein.
Die beeindruckende Hofeinfahrt unterstreicht bereits beim Betreten die Exklusivität des Anwesens. Eine großzügige Garage und zusätzliche Stellplätze bieten ausreichend Platz für Fahrzeuge. Die Einliegerwohnung ist flexibel nutzbar – ob als Büro oder zur Vermietung.
Ruhig und idyllisch in einem Ortsteil von Efringen-Kirchen gelegen, erreichen Sie den Hauptort in nur fünf Minuten. Ein Wohnjuwel für alle, die das Besondere suchen!
PREIS auf Anfrage!
Hinweis:
Wir bitten um Ihr Verständnis, dass wir die vollständige Objektadresse und das ausführliche Exposé nur nach einem persönlichen Gespräch und dem Nachweis der Bonität zur Verfügung stellen. Besichtigungstermine werden anschließend individuell abgestimmt.
Diese außergewöhnliche Villa aus dem Jahr 2003 besticht durch ihre hochwertige Ausstattung und architektonische Raffinesse. Kein alltägliches Haus – sondern ein Wohntraum mit lichtdurchfluteten, großzügigen Räumen, offener Gestaltung und einer Galerie, die den Blick in die Ferne über Wiesen und Obstbäume freigibt.
Der Bauherr hat hier mit viel Stilbewusstsein, Sinn für Ästhetik und einem praktischen Gespür ein Zuhause geschaffen, das keine Wünsche offenlässt. Ein Highlight ist der Wintergarten mit integriertem Pool und Gegenschwimmanlage – perfekt für Wellness und Entspannung. Ergänzt wird das Wohlfühlambiente durch eine Sauna, die erholsame Auszeiten ermöglicht. Im großzügigen Garten lädt ein moderner Pavillon zu gemütlichen Stunden im Freien ein.
Die beeindruckende Hofeinfahrt unterstreicht bereits beim Betreten die Exklusivität des Anwesens. Eine großzügige Garage und zusätzliche Stellplätze bieten ausreichend Platz für Fahrzeuge. Die Einliegerwohnung ist flexibel nutzbar – ob als Büro oder zur Vermietung.
Ruhig und idyllisch in einem Ortsteil von Efringen-Kirchen gelegen, erreichen Sie den Hauptort in nur fünf Minuten. Ein Wohnjuwel für alle, die das Besondere suchen!
PREIS auf Anfrage!
Hinweis:
Wir bitten um Ihr Verständnis, dass wir die vollständige Objektadresse und das ausführliche Exposé nur nach einem persönlichen Gespräch und dem Nachweis der Bonität zur Verfügung stellen. Besichtigungstermine werden anschließend individuell abgestimmt.
| Kaufpreis | 1.500.000,00 EUR |
| Provision | 3,57 % Käuferprovision inkl. MwSt., verdient und fällig mit Beurkundung des notariellen Kaufvertrages. Der Immobilienmakler hat einen provisionspflichtigen Maklervertrag mit dem Verkäufer in gleicher Höhe abgeschlossen. |
Objekt Informationen
| Nr. | 25EKWS |
|---|---|
| Typ | Haus |
| Baujahr | 2003 |
| Wohnfläche | 402 qm |
| Grundstücksfläche | 830 qm |
| Nutzfläche | 41 qm |
| Anzahl Zimmer | 7 |
| Anzahl Badezimmer | 3 |
| Anzahl Schlafzimmer | 3 |
| Anzahl Etagen | 3 |
| Anzahl Stellplätze | 4 |
| Separates WC | ja |
| Gartennutzung | ja |
| Terrasse | ja |
| Befeuerung | Gas, Holz / Stückholz |
| Energieeffizienz | Verbrauchsausweis 64,6 kWh/(m²·a) = B |
